···
Log in / Register
ADDED ON Nov 06, 2025
For rent
fav-iconFavourites
Share
A$559 per week

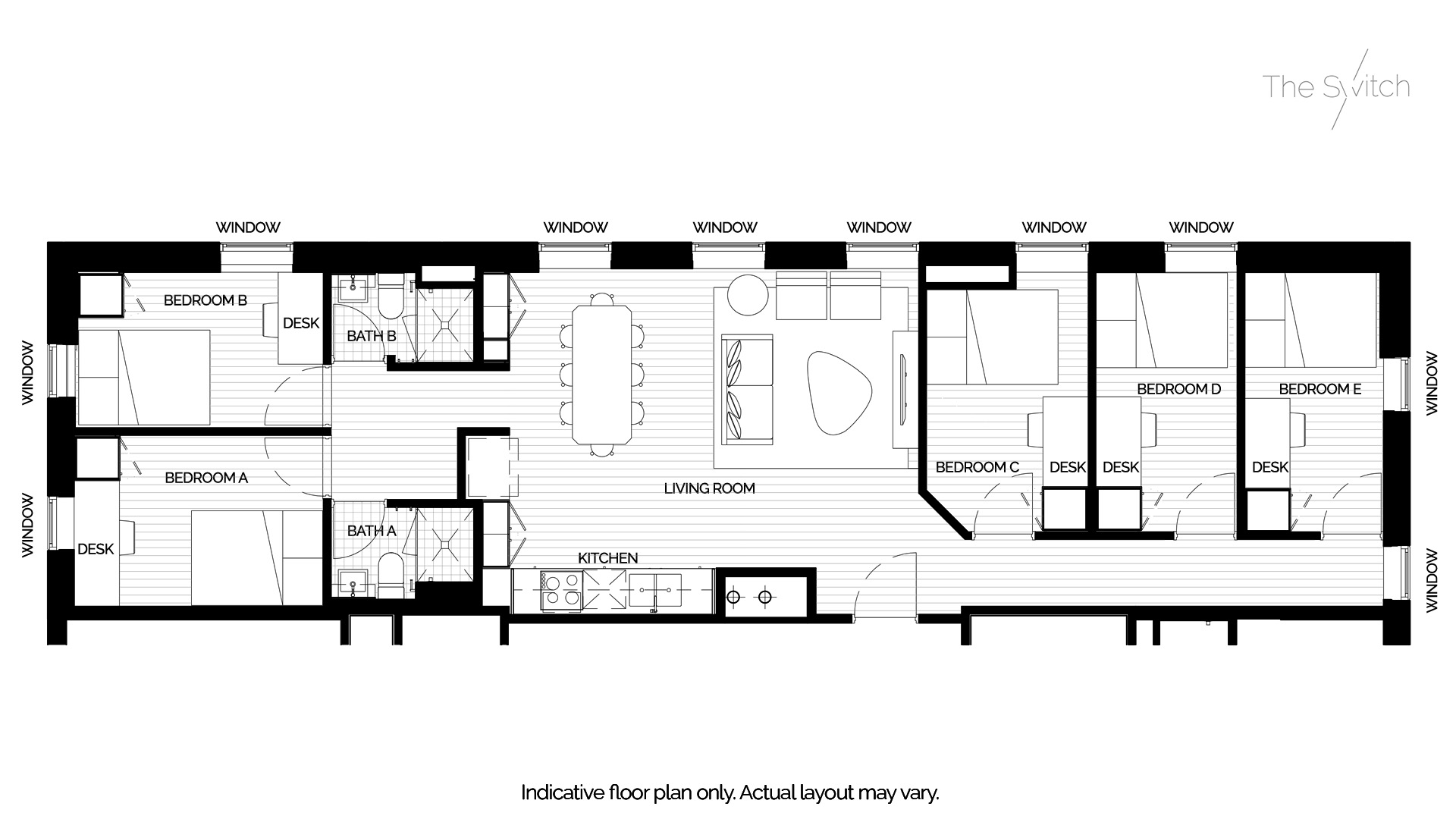
The Switch Perth Central4 Bed Ensuite Apartment

Apartment&Unit
555 Wellington St
Show map
Some content was automatically translated
View Original

Inspect the propertyInspect the property

No upcoming inspections
Please click Contact to reach the agent.

Property IntroductionProperty Introduction

The Switch Perth Central4 Bed Ensuite Apartment
*Children under 18 are not permitted to stay
*The apartment only accepts applications from University of Western Australia
*The apartment is Green Star certified with 5 stars, 24h parcel collection (if the parcel is too large, front desk will send an email notification and you need to collect it from front desk: operating hours Monday to Friday 9-19, weekends 9-17); 24h laundry room accessible via mobile QR code scanning, includes four free uses per week (2 washes + 2 drys); additional free uses can be requested from front desk; gym has on-site trainer and free classes; double occupancy +50 AUD/week (only applicable to studios with a double bed)
*Double Studio and Panoramic Double Studio units accept double occupancy, additional charge of 50 AUD/week applies
 
The Switch Perth Central is a 39-story apartment building, one of the tallest in the Perth city center. Located at 555 Wellington Street, Raine Square is right next to the apartment, just a 5-minute walk to Hay Street pedestrian shopping area, with supermarkets, restaurants, and shopping centers all around, offering extremely convenient living.
Most rooms in the apartment offer unobstructed open city views. The indoor and outdoor communal areas on the 39th floor provide panoramic views overlooking Elizabeth Quay. Other communal facilities include a café and Study Perth Hub on the ground floor, co-working and study spaces plus a recording studio on level one, and on level two a gym, laundry room, central kitchen, honesty kitchen, and outdoor terrace.
The building features 3 high-speed elevators and operates on a fully inclusive rental model with 24-hour guest support. All rooms and common areas in the apartment are air-conditioned. Opposite the apartment is Yagan Square, where various entertainment, cultural events, diverse dining options, and shops are easily accessible. It's also very convenient to reach Perth’s suburbs and beaches. With modern interior design and comprehensive facilities, the apartment fulfills all your needs and offers a vibrant place to live.
contact wechat : oh9266
LiamaraRosas
Cookie
Cookie Settings
Our Apps
Download
Download on the
APP Store
Download
Get it on
Google Play
© 2025 Servanan International Pte. Ltd.